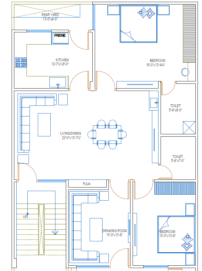
30X40 north-West Facing Residential 2 Floor 6 Bhk House Floor Plan
“Step into a thoughtfully designed 3-bedroom home built for comfort, convenience, and everyday happiness. This G+1 floor plan for a 20x50 east-facing plot offers spacious interiors across two floors with excellent road connectivity. At an estimated cost of ₹48,00,000, this design turns your dream of a modern, functional home into reality—without compromising on quality.”
Project Details
Area
30X40 sq.ft
Price
₹5200000
Floors
G+ 1
No Of Bedrooms
6 BHK
Vastu Compliant
Yes
Type Of Construction
Residential
FLOOR PLAN STEPS
Ground Floor Plan
First Floor Plan
