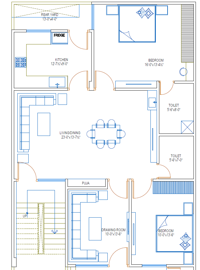
15X60 East Facing Residential 4 Floor 3 Bhk House Floor Plan
โStunning 3-Bedroom G+3 Floor Plan for 15x60 East-Facing Plot โ Functional, Spacious, and Modern Living! This thoughtfully designed residence spans 4 floors, offering a seamless blend of style, comfort, and practicality. With 1 side facing the road, enjoy enhanced ventilation, natural light, and easy accessibility. Estimated at โน68,00,000.00 this floor plan combines affordability with premium design, making it perfect for families ready to build their dream home.โ
Project Details
Area
15x60 sq.ft
Price
โน68,00,000.0
Floors
G+ 3
No Of Bedrooms
3 BHK
Vastu Compliant
Yes
Type Of Construction
Residential
FLOOR PLAN STEPS
Ground Floor
First Floor
Second Floor
Third Floor
